Lokaler til leie

Storgata 75

Sentrumsnært kontorlokale til leie i Brønnøysund

- med mulighet for oppussing

Adresse: Storgata 75, 8900 Brønnøysund. 

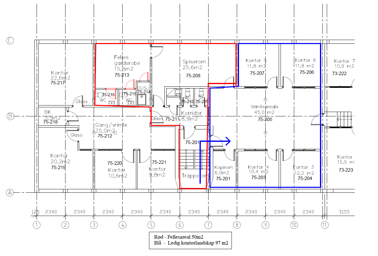
Kontorlokalene består av 97 kvm fordelt på vrimleområde og 4 cellekontor. Her er det mulighet for ombygging basert på leietakerens ønsker.  

Lokalene har delt spiserom, garderober og toalett med leietaker PWC (til sammen 50 kvm). Arealet er i 2. etg, og deler inngangsparti med PWC og SpareBank 1 Helgeland. 

Kontaktpersoner: 

Omvisning:
Jørn Moen Aarøen 
91 30 32 55 // jorn.moen.aaroen@sbh.no

 

Informasjon:
Roy Søfting
91 16 74 05 // roy.softing@sbh.no

sbh-ledig-banklokale-1
lokaler, ledige lokaler, brønnøysund, bankbygget, bank, kontor, 2024
lokaler, ledige lokaler, brønnøysund, bankbygget, bank, kontor, 2024
{ "EMAIL_FIELD_ERROR": "Skriv inn en gyldig e-postadresse.", "CHECKBOX_ERROR": "", "CHECKBOX_GROUP_ERROR": "Velg minst et av alternativene", "DROPDOWN_ERROR": "Gjør et valg i nedtrekkslisten.", "DATE_TO_FROM_ERROR": "Ugyldig dato (eksempel på gyldig dato 31.12.2016).", "RADIO_ERROR": "Velg et alternativ.", "POSTAL_CODE_ERROR": "Skriv inn et gyldig postnummer (4 siffer).", "TEXT_FIELD_ERROR": "Feltet må fylles ut.", "TEXT_FIELD_CONTENTS_ERROR": "Ugyldig verdi.", "ACCOUNT_FIELD_ERROR": "Skriv inn et gyldig kontonummer (11 siffer).", "ORGANISATION_FIELD_ERROR": "Skriv inn et gyldig organisasjonsnummer (9 siffer).", "SSN_ERROR": "Skriv inn et gyldig fødselsnummer (11 siffer).", "PHONE_ERROR": "Skriv inn et gyldig telefonnummer (8 siffer).", "MOBILE_PHONE_NO_ERROR": "Skriv inn et gyldig norsk mobilnummer (8 siffer)", "SEARCH_ALLE": "Alle", "MORE_INFO": "Vis mer informasjon", "RESULT_TYPE_BANK": "Bankkontor", "RESULT_TYPE_ADVISOR": "Rådgiver", "VIEW_IN_MAP": "Vis i kart", "BEFORE_COUNT_TEXT": "Du har", "AFTER_COUNT_TEXT": "oppgave som venter på deg", "AFTER_COUNT_TEXT_PLURAL": "oppgaver som venter på deg", "MINE_OPPGAVER_LINK_TEXT": "Relevant for deg", "MINE_OPPGAVER_CLOSE_TEXT": "Ikke nå", "MINE_OPPGAVER_COUNT_TEXT": "en", "FORM_ERROR_LABEL":"Feil i skjema ", "FORM_SUCCESS_LABEL":"Takk for din henvendelse", "TEXT_FIELD_LENGTH_ERROR":"TEXT_FIELD_LENGTH_ERROR", "TEXTAREA_FIELD_LENGTH_ERROR":"Maks 2000 tegn", "NUMBER_ERROR": "Du kan kun skrive inn tall.", "SEC_BLOCKER_DROPDOWN_DEFAULT": "Velg land", "GLOBAL_SEARCH_NO_RESULT_TEXT": "Ingen treff på", "GLOBAL_SEARCH_FACET_LABEL": "Vis resultater fra", "MODAL_CLOSE": "Lukk", "SEND_TO_BANK_BEFORE_INFO_TEXT": "Vil du komme rett til", "SEND_TO_BANK_AFTER_INFO_TEXT": "neste gang?", "SEND_TO_BANK_NEXT_BUTTON_TEXT": "Ja, husk banken min", "SEND_TO_BANK_CANCEL_BUTTON_TEXT": "Nei, ikke nå", "SEND_TO_BANK_NEXT_DISCLAMER_TEXT": "For at du skal slippe å velge bank hver gang, bruker vi funksjonelle informasjonskapsler som lagrer hvordan du bruker nettsidene og hvilke innstillinger du har gjort." }